402 7th Street SE, Stewartville, MN 55976
- 3 beds |
- 3 baths |
- 2,680 sqft
Single-Family Home
Built in 1971
8,712sqft lot
2 car garage
$123/sqft
Listed 5 months ago
Property Description
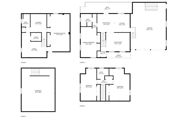
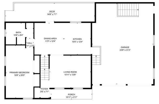
Don't miss this nicely updated 3 bed/3 bath home located in a quiet neighborhood walking distance to Bonner Elementary and Brin Park! Great floor plan with spacious main floor bedroom and 3/4 bath. This oversized bath offers plenty of room for a stackable washer/dryer for true main floor living. Upstairs you'll find two bedrooms each with spacious closets and served by a full bathroom. The fully finished basement offers tons of additional living space, 3/4 bath, and potential for a 4th bedroom. The oversized and finished 2-car garage is truly exceptional with its own HVAC and pre-stressed area below - perfect for a workshop, home business or workout/rec area. Other great features include a fenced area for pets, storage shed, 3rd parking pad, deck with privacy fencing off the kitchen, updated vinyl windows and new flooring, Available for immediate possession!
- Listing Status:
- Pending
- Listing Office:
- Re/Max Results : 507-288-1111
- MLS ID:
- 6744720

- Rooms: KitchenLiving RoomBedroom 1BathroomBedroom 2Bedroom 3Family RoomDenUtility RoomLaundryGarageBonus Room
- Master Bath: 3/4 BasementMain Floor 3/4 BathUpper Level Full Bath
- Appliances: DishwasherDryerMicrowaveRangeRefrigeratorWasherWater Softener Owned
- Dining: Eat In Kitchen
- Basement: BlockEgress Window(s)FinishedFull
- A/C: Central Air
- Heating: Forced Air
- Fireplace: Fireplaces: 0
- General: Storage Shed
- Parking: Attached GarageFinished GarageHeated Garage
- Roofing: Asphalt
- General: One and One Half
- Road/Access: City Street
- HOA Amenities: 0.0
- Originating MLS: northstar
- School District: Stewartville
- County: Olmsted
- Zoning: 440221029370
- Fencing: Partial
- Utilities: Circuit Breakers
- Water: City Water/Connected
- Sewer: City Sewer/Connected
- Source: northstar
This listing courtesy of Re/Max Results
Monthly Payment
- Principal & Interest $
- Property Taxes $
- Home Insurance $
- VA Funding Fee $
Location
Schools Nearby
Bonner Elementary School
526 5th Ave SE, Stewartville, MN, 55976
Grades KG-2
0.21 miles away
Stewartville Middle School
440 6th Ave SW, Stewartville, MN, 55976
Grades 6-8
0.77 miles away
Stewartville Senior High School
440 6th Ave SW, Stewartville, MN, 55976
Grades 9-12
0.72 miles away
